REDATS 2-pelarlyft L-220R Automatisk+Ram
REDATS L-220R (400V) är en automatisk tvåpelarlyft med förstärkningsram och en lyftkapacitet på 4 ton. Den erbjuder en smidig och effektiv lösning för lyft- och sänkprocessen vid fordonsservice och passar både personbilar och lätta transportfordon.
- 10 liter gratis hydraulolja HL32 ingår.
- Leverans: 3–7 arbetsdagar
- Fri frakt
- Svensk bruksanvisning
- Support & reservdelar
REDATS L-220R – Automatisk tvåpelarlyft med förstärkningsram (400V)
2-pelarlyft L-220R är en kraftfull hydraulisk tvåpelarlyft med en lyftkapacitet på 4 ton, utvecklad för verkstäder som behöver en stabil och effektiv lyftlösning för personbilar och lätta transportfordon. Tack vare den automatiska styrningen och den robusta konstruktionen erbjuder lyften en smidig och säker arbetsprocess vid service och reparationer.
Förstärkningsram – lägre krav på golv
L-220R är utrustad med en extra förstärkningsram, vilket gör lyften mer förlåtande när det gäller golvets tjocklek. Den kan installeras på betonggolv med en tjocklek på endast 20 cm, vilket gör installationen enklare i många verkstäder.
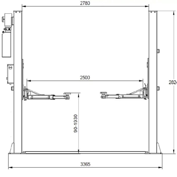
Förstärkningsramen gör också lyften något bredare än standardmodellen L-220. Den totala bredden ökar med 160 mm (80 mm per sida). Ramen har dessutom en särskild stöddel som är 120 cm bred, vilket ger extra stabilitet under användning.
Automatisk kontroll för effektivt arbete
Lyften har en automatiserad kontroll av både lyft- och sänkprocessen. Via knapparna på kontrollpanelen kan du enkelt styra lyften utan manuell hantering vid pelarna.
Båda pelarna är utrustade med elektromagneter som automatiskt frigör säkerhetslåsen när sänkningsknappen aktiveras. Detta gör arbetet både snabbare och mer ergonomiskt i den dagliga verkstadsdriften.
Flexibla och justerbara lyftarmar
REDATS L-220R är utrustad med asymmetriska lyftarmar, där de främre armarna är kortare och de bakre längre. Detta gör det enklare att positionera fordonet korrekt.
Armarna är dessutom teleskopiskt justerbara, vilket gör att de kan anpassas efter olika fordonsmodeller och lyftpunkter.
Hög säkerhet i verkstaden
Lyften är utrustad med flera säkerhetsfunktioner som ger trygg och stabil användning:
- Automatiskt säkerhetsspärrsystem som aktiveras vid lyft
- Automatiskt stopp vid maximal lyfthöjd
- 24V elektromagnetiska säkerhetslås
- Gummiskydd som skyddar bilens dörrar
- Nödstoppfunktion
Installation
Lyften förankras i betonggolvet med medföljande expanderbultar. För installation krävs ett plant golv med en minsta tjocklek på 20 cm betong för att säkerställa stabil och säker användning.
Robust konstruktion och lång livslängd
REDATS L-220R är byggd med högkvalitativa komponenter och slitstarka material för långvarig drift i verkstadsmiljö. Konstruktionen är noggrant testad för att leverera stabil prestanda även vid intensiv användning.
Lyften är CE-märkt och levereras med 12 månaders garanti. Reservdelar finns tillgängliga för enkel service och underhåll.
REDATS L-220R är en pålitlig och användarvänlig tvåpelarlyft som kombinerar hög kapacitet, förstärkt konstruktion och automatisk kontroll. Den är idealisk för servicearbeten på fjädring, chassi och andra underhållsarbeten på personbilar och arbetsfordon.
- Varumärke: REDATS
- Artikelnummer: L220R-150093
- Tillverkare: REDATS
- Typ: Automatisk
- Max lyftkapacitet: 4 ton
- Förstärkningsram: Ja
- Fällbara armar: Ja
- Tid för höjning: 50 sekunder
- Tid för sänkning: 25 sekunder
- Max bilbredd: 2 500 mm
- Motoreffekt: 2,2 kW
- Mått (bredd × höjd): 3 365 × 2 824 mm
- Lyfthöjd: 90 – 1 930 mm
- Strömförsörjning: 400V
- Fraktvikt: 620 kg






























